5,453 SF
2001 Spring Rd.
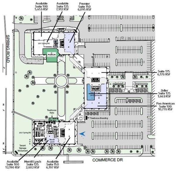
Commerce Plaza features a flexible and adaptable floorplate available to meet any company’s needs. Our CommerceQuick spaces range in size from 600 RSF to 3,400 RSF, offering furnished move-in ready space with co-working amenities.








What is CommerceQuick?
This is our individual, fully furnished move-in ready suites, an immediate and flexible space solution.
What are the benefits of CommerceQuick?