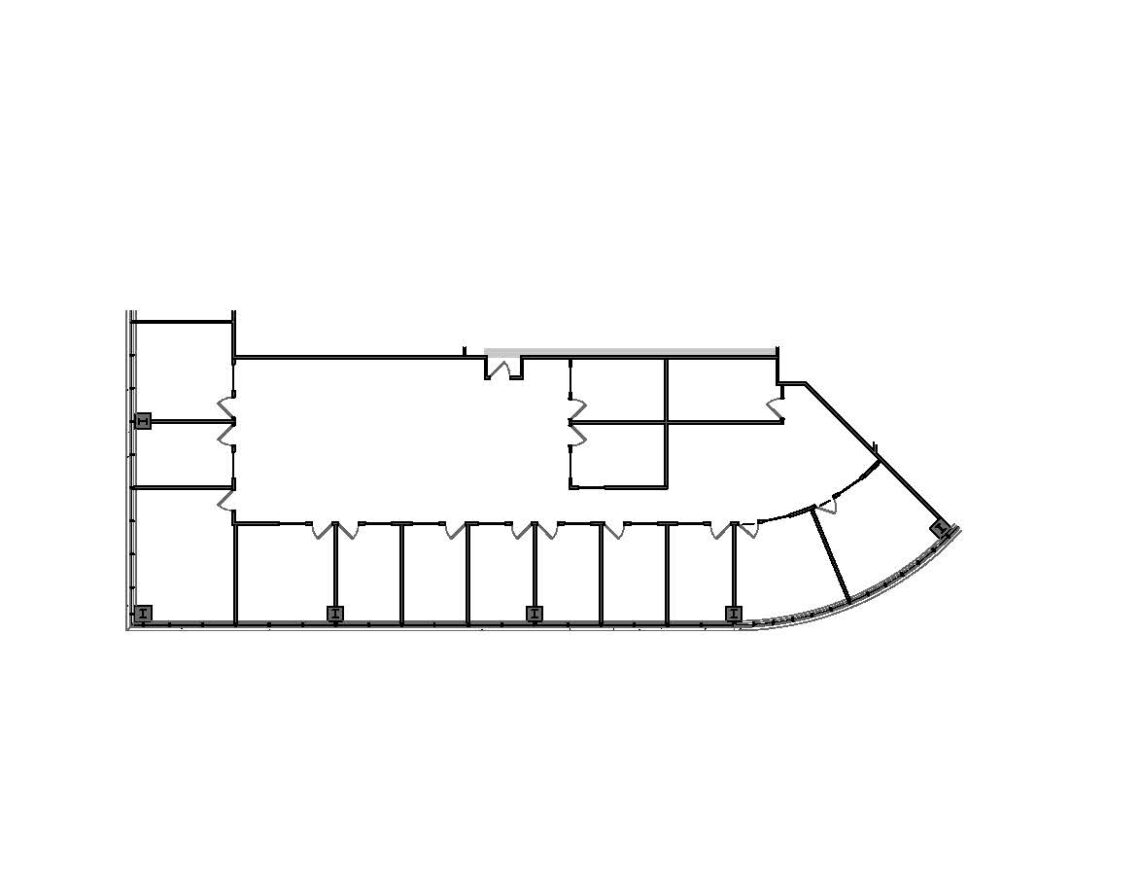
4,210 SF
Life at Fifth Street Towers
With its intentionally designed, ever-evolving workplace experience, Fifth Street Towers has created a community where happy, healthy and productive employees can enjoy work and play; where innovative leaders and their organizations thrive.
For more information regarding leasing:
Brent Karkula | brent.karkula@jll.com | 612.217.5153
Brent Robertson | brent.robertson@jll.com | 612.217.5132
Callie Ronkowski | callie.ronkowski@jll.com | 701.740.1017
Teig Hutchinson | teig.hutchinson@jll.com | 612.217.5157
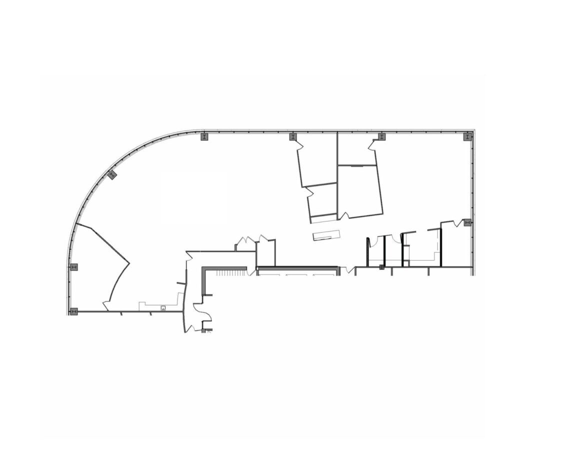
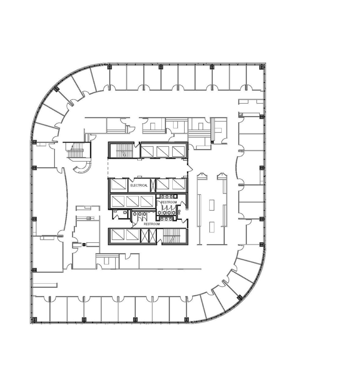
AVAILABLE SUITES IN 100 TOWER




























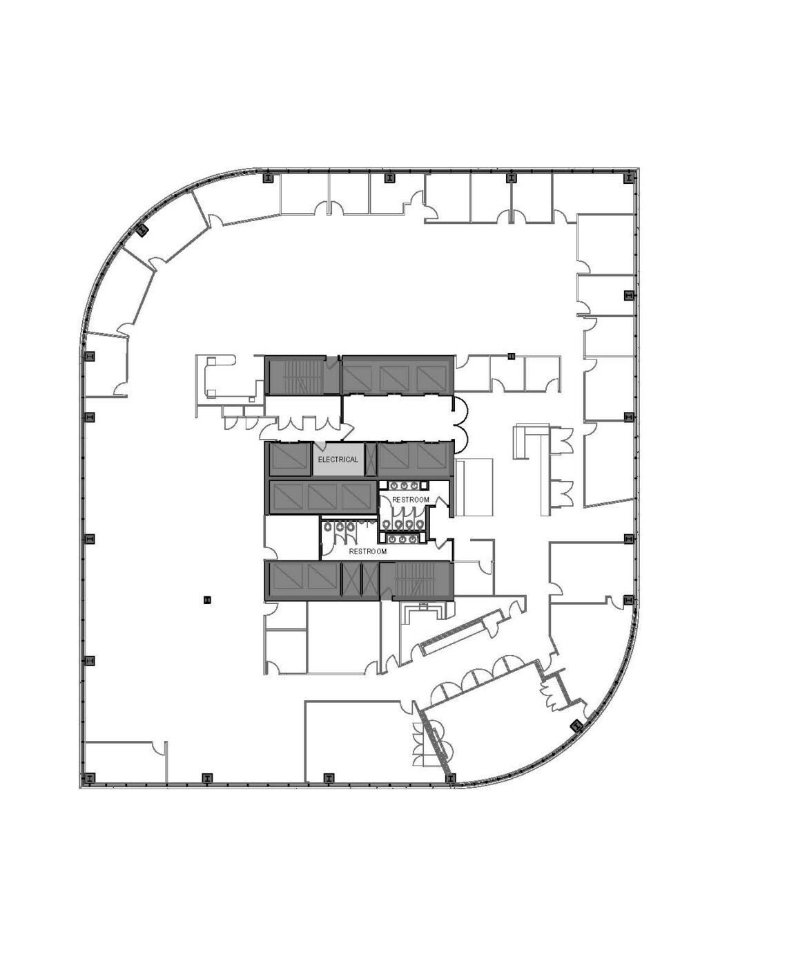
AVAILABLE SUITES IN 150 TOWER


















